全国[切换]

室内设计施工图价钱

2020-01-09 13:42

来源:点击:7327

同样一个项目,施工图外包费用差距上万元,现如今施工图深化及外包成为装饰行业一阵热流,装饰深化设计行业历尽10年发展,一个行业的成熟就将面临一个行业的膨胀,施工图深化的收费价格与服务深度也参差不齐,据一位设计公司老板透露,他在寻找施工图深化公司时有的报价30元/平米,最少的提价2元/平米,具体服务到什么程度也没有一个明确的原则,这种乱收费、乱接单的现状将会成为深化行业的毒瘤,会让很多的客户不敢尝试施工图深化,同时会减速行业发展。 更多装修效果图尽在装修乐http://www.zxl.com/

室内设计施工图价钱
深化设计案例

据天非施工图深化公司负责人秦先生透露,他们作为深化设计行业第一品牌,在08年初创时期,每个项目都要花上2~3小时给客户讲解施工图深化及施工图外包的模式和价值,有的客户甚至沟通几个月才能达成合作,深化设计之初所有客户都在观望状态,随着装饰设计行业的设计成果要求越来越高,施工图深化行业也越被业内重视,有的公司早在几前年就安排员工去学习、提高,现如今施工图深化设计公司越来越多,甚至一些效果图工作室也在摸着石头过河的提供施工图绘制服务,同时也出现了很多施工图深化设计培训机构,由此可见施工图深化设计行业才处于苏醒状态,还未到成熟的阶段。

本次我们邀请到国内深化设计第一品牌“天非深化设计公司”CEO秦先生给我们讲解深化设计、施工图深化、施工图外包三种服务的收费方式与服务模式:

一、深化设计

天非深化公司秦先生讲道:深化设计通常指装修二次设计、方案细化深化,真正的深化设计公司、深化设计师需同主案设计师一样具体项目把控能力、方案设计能力,同时还需具备更多的施工经验与超高的抗压能力。

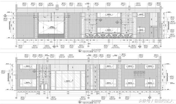
室内设计施工图价钱
专业人员绘制的立面图

通常方案设计师是负责创意、概念,深化设计师是设计的执行者。在近几年深化设计需求越来越高,像很多中大型项目例如酒店、商业综合体,投资方为了让项目更有知名度通常会聘请港台及国外设计公司,在考虑设计成本及国内施工单位水平的同时,会采用让国外设计师或国际知名设计师做方案设计,让施工单位或者聘请专业深化设计公司负责项目深化设计。

室内设计施工图价钱
非专业人员绘制的立面图

深化设计收费标准根据工作量而定,对比全案设计少了前期的项目统筹和概念方案、效果图成本等,所以深化设计工作量是全案设计的60~70%,所以深化设计收费在全案设计的60~70%左右,在国内通常深化设计收费单价在30~60元/平米。

真正有实力的深化设计师及深化设计公司在业内还很少,因为深化设计师责任及能力要求太高了,需工作经验至少8年以上,独立完成酒店商场等大型项目5个以上才具备深化设计能力。

二、施工图深化设计

天非深化设计公司秦先生讲道:施工图深化设计是指根据项目实际情况、效果图进行施工图绘制,并在施工图绘制过程中对优化方案的收口细节、造型比例、材质工艺等,并非纯粹画图的。

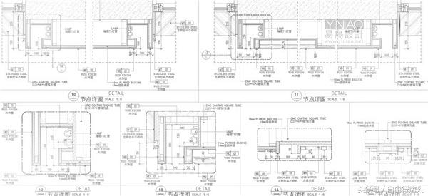
室内设计施工图价钱
专业人员绘制的节点图

通常绘制一套专业、系统的施工图只是施工图深化设计师的基本能力,施工图深化设计师更多的能力应该体现在让设计方及主案设计师省心省事,一个案子方案通过之后,剩下的设计工作就全权交给施工图深化设计师负责了,不管是方案微调也好、与现场不吻合也好都需要施工图深化设计师拿出一个合理的解决方案。

施工图深化设计收费同样是根据在设计阶段中价值所在,所谓一分钱一分货,有多少价值拿多少钱,通常占设计费用20~30%左右。在服务模式成熟、实力很强的情况下收费在8~25元/平米左右。当然样板间、酒吧、KTV、星级酒店这些项目除外。

施工图深化设计师同样对绘图能力、方案把控能力要求很高,并非做了几年绘图员就具备的,通常需要工装设计师转型后经常3~5年项目磨练之后才具备。

三、施工图外包

天非深化设计公司秦先生讲道: 施工图外包是最简单直接的服务,就是帮别人绘制图纸,通常施工图外包就如现在做效果图一样,会比较累人,有时遇上能力差的绘图员,图纸会多次修改,甚至修改出来都无法交付,在绘制图纸过程中设计师需要经常指点、甚至就像做效果图一样,需要守着绘图员才能把图纸绘制准确。

室内设计施工图价钱
专业深化公司绘制的节点图

施工图外包因为要求不高、门槛低,有些做了1年助理的也能帮别人画画施工图,所以具体收费价格高低不一。

室内设计施工图价钱
非专业人员绘制的节点图

四、最后总结

现行业处于调整发展期,在服务深度、收费价格都无法统一,奉劝各位设计师,在做深化前先考虑好自己需要哪种服务,是需要深化设计?还是需要施工图深化?还是只需要个绘图员画画图就完事,完全是根据自己需求、根据项目要求来定,先明确自己所需要的服务之后才能去找在这个服务领域所擅长的深化设计公司或者深化设计师。

以上,就是装修乐小编给大家带来的室内设计施工图价钱全部内容,希望对大家有所帮助!

标签: 施工图设计

热门文章

装修公司 更多>>

最新文章 更多>>

免费获取报价

省钱 · 省时 · 省心

今日仅剩100个免费名额

您的信息,我们将严格保密请放心填写

热门标签更多>>

免费报价

免费设计

  • 装修计算器

    今天已经有88位业主获取了装修预算

  • 装修预算报价为75625
    • 材料费 :546464
    • 人工费 :46546
    • 设计费 :1456
    • 质检费 :464123
  • 免费装修设计

    已经有14652人选择

  • *声明 :装修乐为您提供专业、透明、准确的装修报价,该项服务绝不产生任何费用,您的隐私将被严格保密!

  • 提交成功!
  • 稍后装修顾问将来电,免费为您提供装修咨询服务

    如有疑问,可扫码添加客服微信咨询